Ojai Playhouse
Location Ojai, CA | Completion Date in progress
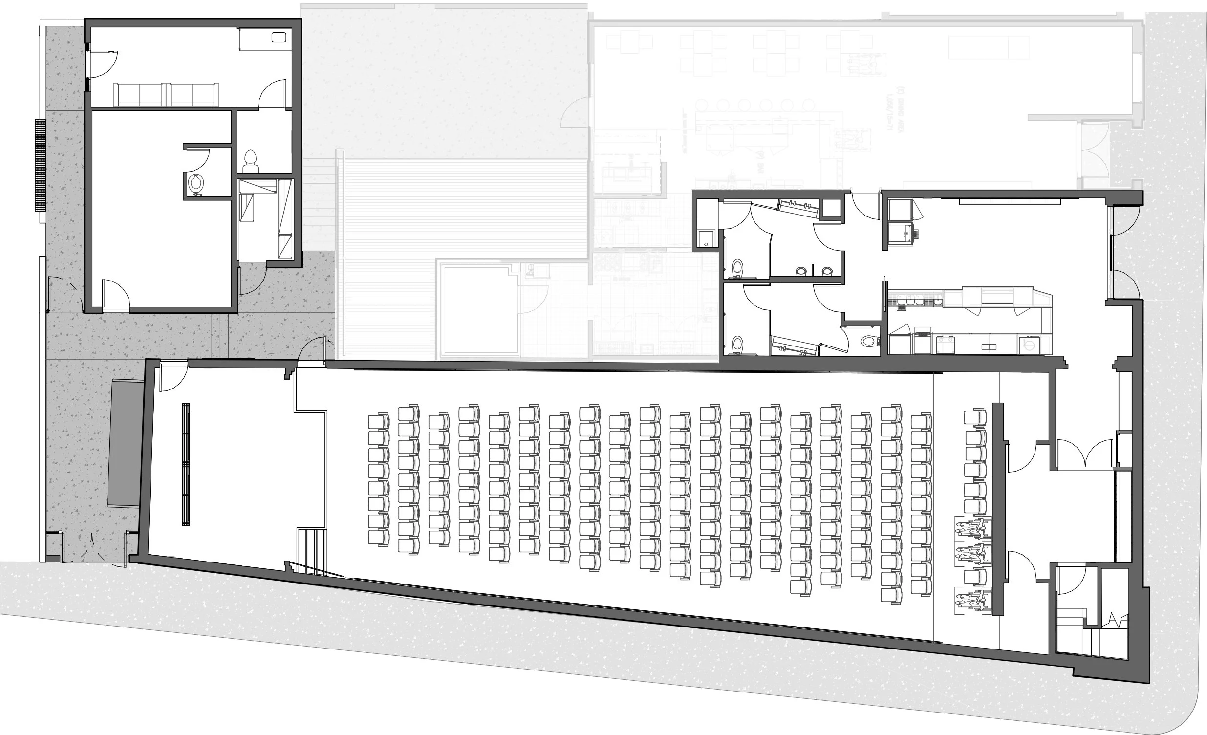
In 2014 a water main burst, severely damaging not only the interior but also the structural foundation of the Ojai Playhouse. After years of legal battles with the utility company and negotiations with the current building owner, the Ojai Film Society working with KAPC are bringing Ojai their only movie theater back as well as restoring the adjacent commercial space. The restoration returns a valuable community resource to local residents and expands program opportunities. The new theater enables the Film Society to offer a wider array of cultural programming & performing arts events. Using the latest sound system from Dolby along with the curated movie selection will result in the theater becoming a destination location.
Project Type Theater | Location Ojai, CA | Project Size 5,500 SF | Start Date February 2019 | Completion Date inprogress | Services Architecture, Interior Design, Programming | Architect Bob Kupiec | Design Team Ashley Conolly | Structural Mark Baker | Mechanical AGME | Lighting Ann Kale Associates | Audio Visual New Media Hollywood | Acoustics Newson Brown /Ian Bromilow | Contractor Kerry Miller & Holwick Constructors
